µÎ¿ø ¶óÁö¿¡Å¸ °Ë»ç ¶óÀÎ
Name : °ü¸®ÀÚ Hits : 150

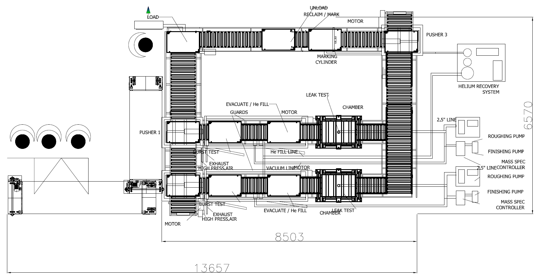
¶óÁö¿¡Å¸ ¿ëÁ¢ºÎÀ§ Å©·º °Ë»ç ÀåºñÀÔ´Ï´Ù.
8¿ù30Àϰ格³Ä¡¿Ï·áÇϸç,
¹Ù·Î À̾ ÇѰ³¶óÀÎÀ» ´õ ¼³Ä¡ÇÒ °èȹ ÀÔ´Ï´Ù.

ÀÛ¼ºÀÏ : 2013-07-31

µÎ¿ø Á¤°ø.jpg